• Carcotex液压迫紧

Carcotex液压迫紧

image001.jpg    image002.jpg


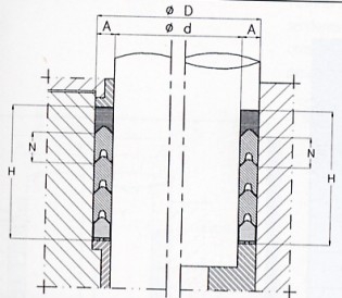
由数个V形环装于两个端环而组成。

适合垂直或水平往覆式运动机器,压力可达350 bar以上。

Carcotex/SG在偏心的活塞上亦能达到不漏的程度,不必压缩便于安装,特别是应用在不可调节的迫紧槽。 Carcotex/UG具有最短的轴向尺寸适合安装在拉杆和活塞上的密封槽内。

Carcotex/UN (1+3+1)

Carcotex/SG (1+2+1)

Carcotex/UG (1+1)


请点选 → 请联络我们 chainex@chainex.com.tw